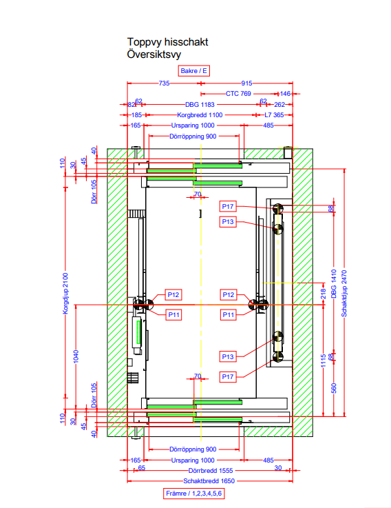
Hissmått

Nedan finns mått på hissen i fastigheten. Bra att ha koll på inför inflyttningen!

 

  • Dörröppning 900 mm
  • Korgbredd 1100 mm
  • Korgdjup 2100 mm